Experts in fire design and planning, drafting precise diagrams with AutoCAD.
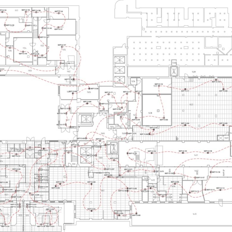
Fire Alarm Block Plans
We provide Fire Alarm Block Plans in accordance with Australian Standards 1670.1 and 1670.4 and compliant with DFES.
As Builds
We provide As Build drawings in accordance with Australian Standards 1670.1 and 1670.4 and compliant with current DFES requirements.
Evacuation Diagrams
We provide Evacuation Diagrams in accordance with Australian Standards 3745-2010 Planning for emergencies in facilities.
Supplying AutoCAD Drawings and Diagrams
Specialising in Fire Detection, Fire Protection & Electrical Drafting
Essential Drafting Services provides high quality, compliant drawings and diagrams to our customers within the Fire and Electrical Industry.
CONTACT US
Talk to our friendly, helpful team regarding your specific drafting needs
Why Choose Us?
Experienced Team with Competitive Pricing
Our specialist drafting team have over 17 years of drafting experience and 12 years of specific fire and electrical applied drafting knowledge. Our pricing is competitive for a specialist drafting service.
Our Team

Clarissa Power
Drafting Manager / Director